Terrazza Mimosa Villa 41 – SOLD
Something a bit different !!
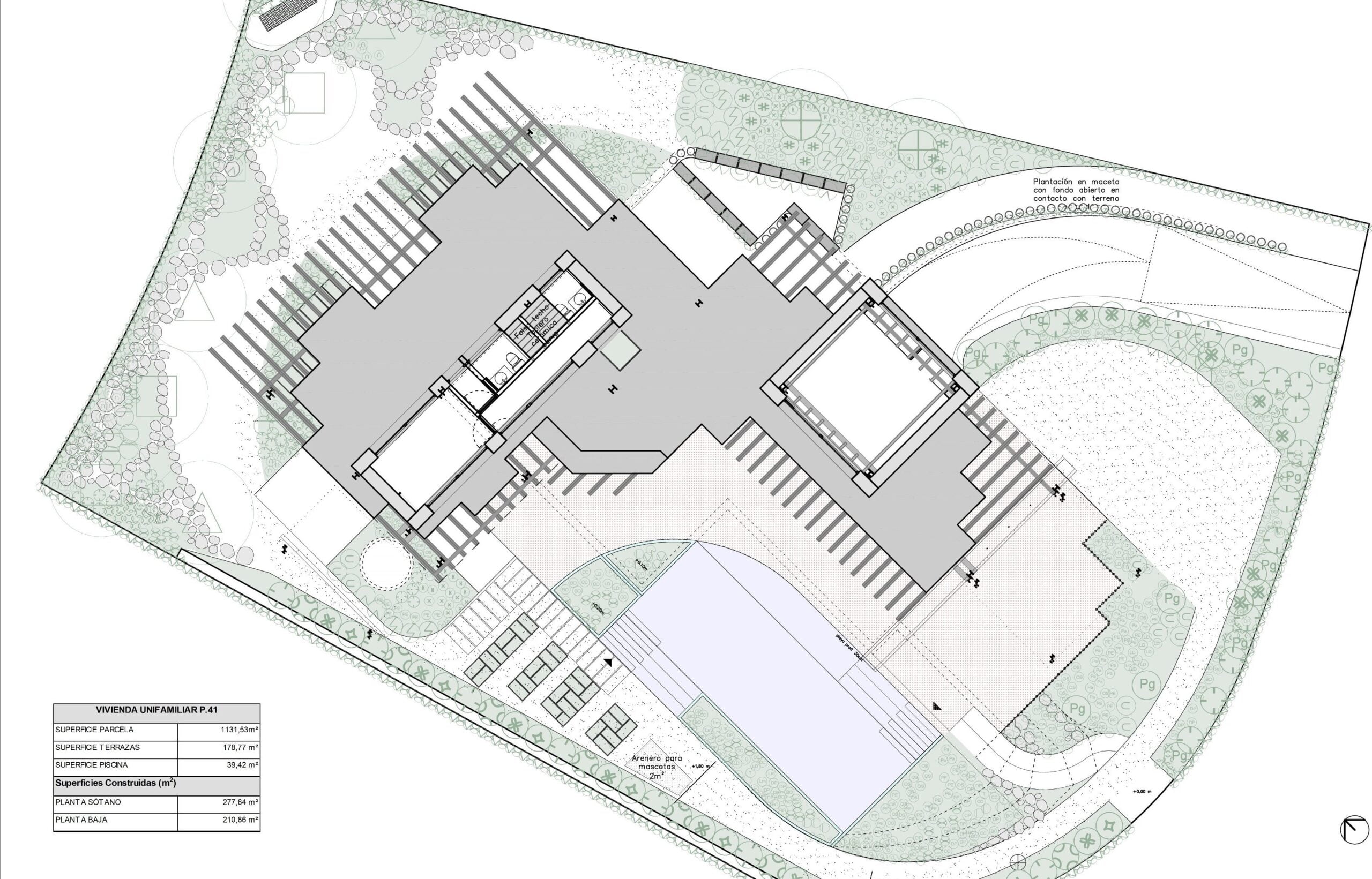
Terrazza Villa “Well-living” in the MIMOSA COMMUNITY – Price 2,750,000€
Something a bit different. HUGE wow factor villa offering ‘Green Certification‘ including 3 bedrooms, 4+1 bathrooms, massive 277 m² basement and pool in the popular Mimosa community. Conveniently located within walking distance to the Las Colinas club house, gym and sports facilities. Don’t miss out on this mega impressive villa located on a prime south east plot.
“Well-living” is a way of living that seeks to balance sustainability with quality of life. New homes are Sello Verde-certified, which guarantees energy efficiency and measures environmental impact.
Check out all the photos below to see what a unique villa this is.
Contact us for further details:-
Terrazza Mimosa Villa 41
Swipe ← for details & prices
| Plot No | Bed | Bath | Plot m² | Build Area m² | Basement m² | Terraces m² | Pool m² | Price € +iva |
|---|---|---|---|---|---|---|---|---|
| 41 | 3 | 4+1 | 1185.00 | 488.50 | 277.64 | 178.77 | 39.00 | SOLD |
| View other villa options at Las Colinas. Key ready, off plan, plots, custom build and designer villas |
|---|

















You must be logged in to post a comment.